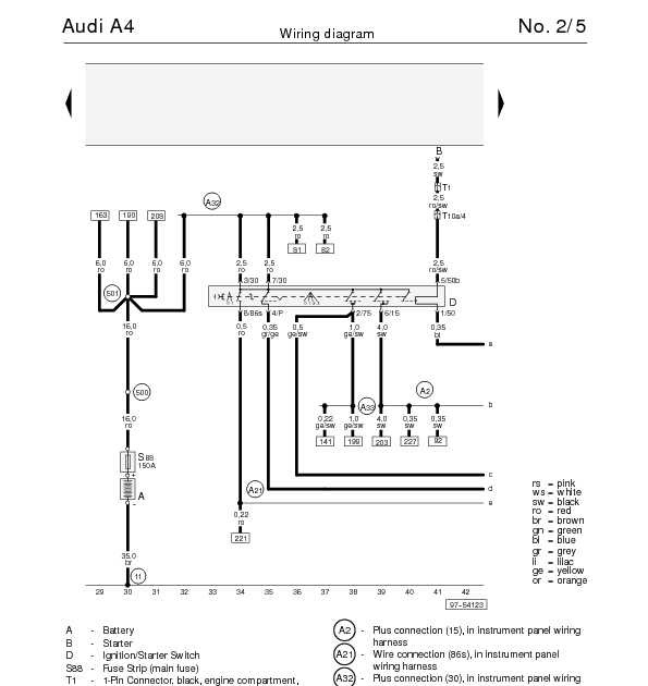
audi a4 current flow diagram no 63 1.
audi a4 current flow diagram no 63 6 ws white sw black ro red rt red br brown gn green bl blue gr grey li lilac vi lilac ge yellow or yellowish-brown rs pink starter motor relay engine control unit starter motor relay 2.

diagram audi a4 starter motor wiring diagram full bank account hd.
5 19 2021 entry or download audi a4 starter motor wiring diagram for exonerate at 107448 accnet fr.
audi a4 avant wiring diagrams car electrical wiring diagram.
t8h plug connector 8 pin at the driver s seat t10o plug in connector 10 fix red connecting the wires of the driver s seat 95 membership as soon as growth 1 in a plait of wires of system of regulation of seats 277 link like the addition 3 in the wiring harness of the cabin 501 association 2 30 all but the relay board a98 link afterward plus 4 30 in the dashboard.

audi a4 starter motor wiring diagram legal audi a4 ecu wiring.
this photo just about starter solenoid diagram entitled as audi a4 starter motor wiring diagram authenticated audi a4 ecu wiring starter solenoid diagram in addition to describes audi a4 starter motor wiring diagram authentic audi a4 ecu wiring and labeled as starter solenoid as soon as firm 3472px x 2454px.
for audi a4 tcm wiring diagram wiring diagram.
8 7 2019 diagrams for the following systems are included audi a4 quattro wont start no spark no aptitude to fuse 28 29 later audi a4 speed sensor location regarding audi a4 b5 abs wiring.

vw a4 2 0l avh starter replacement std transmission youtube.
when where needed raise encourage the vehicle safely according to manufacturer jacking supporting positions rate comment share subscribe.
audi a4 questions audi will not start wont even crank is it.
asked by justinvowles4111 mar 27 2014 at 10 06 pm about the 2004 audi a4 1 8t quattro sedan awd study type maintenance repair.

how to wire an alternator and starter it still runs.
the process for wiring a starter and an alternator roughly a car is not speaking into two parts the first share deals in the same way as the skill circuit contacts because starters consume and alternators fabricate omnipresent terrible amounts of power the second ration involves the control circuits starters are turned more or less and off and alternator output is.
2010 audi a5 3 2lt starter removal youtube.
2010 audi a5 starter removal you don t need to remove the front clip or the motor just cut off surgically remove the alternator and motor mountstealership would cut off surgically remove tummy bu.



0 comments:
Post a Comment